Due to the health concerns created by Coronavirus we are offering personal 1-1 online video walkthough tours where possible.




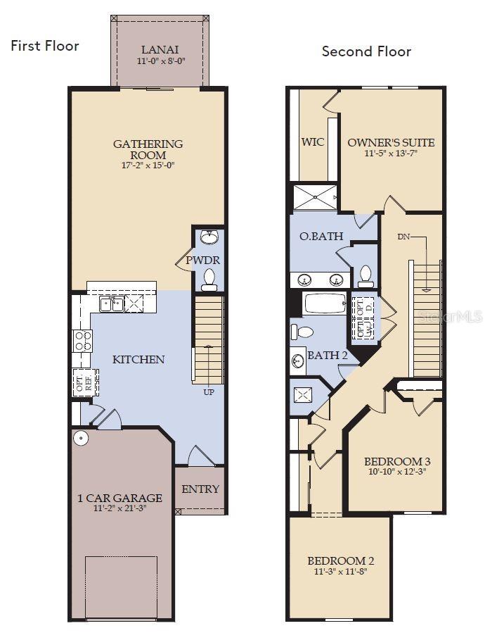
Under Construction. Welcome to Skylar Crest – a new townhome community all about location! Situated off of Lake Mary Blvd, your new home will provide quick access to downtown Sanford and the RiverWalk, plus all of the shopping & dining Lake Mary has to offer. Just 5 minutes to 417, private homesites, and a resort-style pool, cabana, and playground will provide everything you’re looking for! Discover the perfect blend of convenience and luxury in this move-in ready Springdale two-story townhome by Pulte. Every detail has been thoughtfully crafted to elevate your lifestyle, with designer touches that make your home feel both stylish and sophisticated. This interior-unit townhome offers 3 spacious bedrooms, 2 full bathrooms, a powder room, and a single-car garage, complemented by a covered lanai. The open-concept first floor is perfect for modern living, with a gourmet kitchen featuring Lagoon quartz countertops, Elkins Stone Gray cabinetry, a stylish tile backsplash, and stainless-steel Whirlpool appliances, including a refrigerator. The open concept gathering room and café area flow seamlessly into the covered lanai, providing a perfect setting for entertaining or simply relaxing. Upstairs, retreat to your private Owner’s Suite, which boasts a generous walk-in closet and a luxurious en suite bathroom complete with a double-sink quartz vanity, a walk-in shower with a glass enclosure, and ample storage space. Two additional bedrooms, a secondary bathroom, and a conveniently located laundry room offer both privacy and functionality. With elegant, professionally curated design selections including Brescia Blanco porcelain tile flooring, soft and stain-resistant Shaw Brand Ornamental Gate carpet, Whirlpool washer and dryer, and designer window blinds, this home is as beautiful as it is practical. Don’t miss the opportunity to make this sophisticated townhome yours—schedule a tour today and experience the luxury and ease of modern living!
| 2 weeks ago | Listing updated with changes from the MLS® | |
| 2 weeks ago | Status changed to Active | |
| 2 weeks ago | Listing first seen on site |
Join our mailing list to receive our free weekly event preview and news digest. No spam. Ever. Promised!
Did you know? You can invite friends and family to your search. They can join your search, rate and discuss listings with you.